|
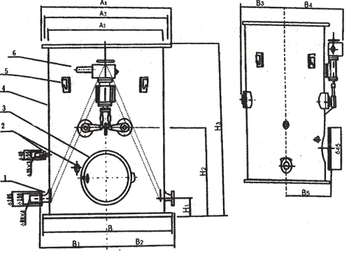
SF型收球網外形尺寸及外形圖,SD型收球網外形尺寸及外形圖

SF型雙柵格網板收球網外形簡圖


SD型單柵格網板收球網外形簡圖

收球網:安裝于凝汽器循環水管路的出水管段上.它的作用是將隨系統運行的清潔膠球從冷卻水中分離出來.
膠球清洗泵:膠球清洗裝置系統中使海綿膠球不斷循環往復的動力設備.
裝球室:膠球清洗裝置系統中用于放球,取球,存儲和觀察清潔膠球循環情況的膠球存儲器.
分匯器:控制膠球在清洗系統中需進行清洗的一側運行.
清潔膠球:凝汽器膠球在線清洗系統專用膠球.
旋轉反沖洗強排污二次濾網:安裝于凝汽器循環水管路的進水管段上.凝汽器循環冷卻水二次過濾網,以改善膠球清洗系統清潔膠球的運行環境,污雜物可通過定期排污而排出循環水系統.此濾網也可單獨使用于需要凈化過濾循環水系統.
其它鏈接:
膠球清洗裝置系統主頁面
相關鏈接:
凝汽器膠球清洗裝置電子版說明書
旋轉反沖洗強排污二次濾網電子版說明書
|